V

PAKHUYS 48 – UNIEK DUPLEX WONEN AAN DE DIJLE

livingarea
130 m²
bedrooms
2
bathrooms
1

PREVIEW: Pakhuys 48 – Uniek duplex wonen aan de Dijle: luxe, ruimte en een panoramisch uitzicht 

Ervaar de ultieme woonbeleving in Pakhuys 48. Dit exclusieve duplexappartement op de 2e en 3e verdieping combineert verfijnde architectuur met een ongeëvenaard gevoel van luxe en privacy. Gelegen aan de Lange Schipstraat, biedt dit pand een uitzonderlijke combinatie van modern comfort en een adembenemend uitzicht op de Dijle. 

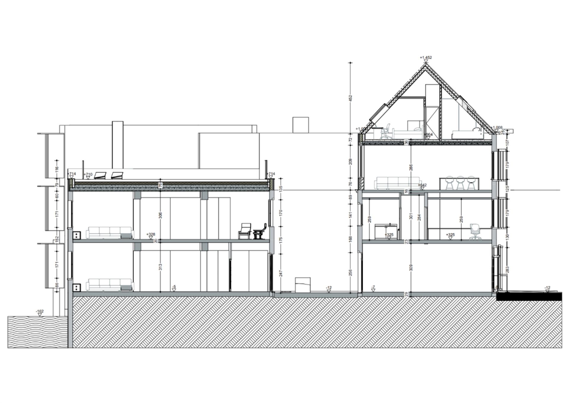
Met een woonoppervlakte van 130 m² en een spectaculair dak-tuinterras van 52 m² is dit appartement een droom voor wie houdt van ruimte, licht en stijlvol wonen. 

 

Indeling 

Aan de voorzijde van de duplex bevindt zich het elegante woongedeelte, bestaande uit een open keuken, een gezellige eetkamer en een sfeervolle woonkamer. Hier geniet u van een lichte en uitnodigende ruimte, perfect voor ontspanning en sociale momenten. Het terras, aangrenzend aan de leefruimte, is een charmante plek waar u het hele jaar door kunt genieten van een vleugje buitenlucht. 

De achterzijde van het pand onthult het pièce de résistance van deze duplex: een indrukwekkend dak-tuinterras van 52 m², gericht op het westen. Dit terras biedt niet alleen een spectaculair uitzicht op de stad en de Dijle, maar ook een perfecte setting voor zonnige namiddagen, sfeervolle diners of rustige avonden onder de sterrenhemel. 

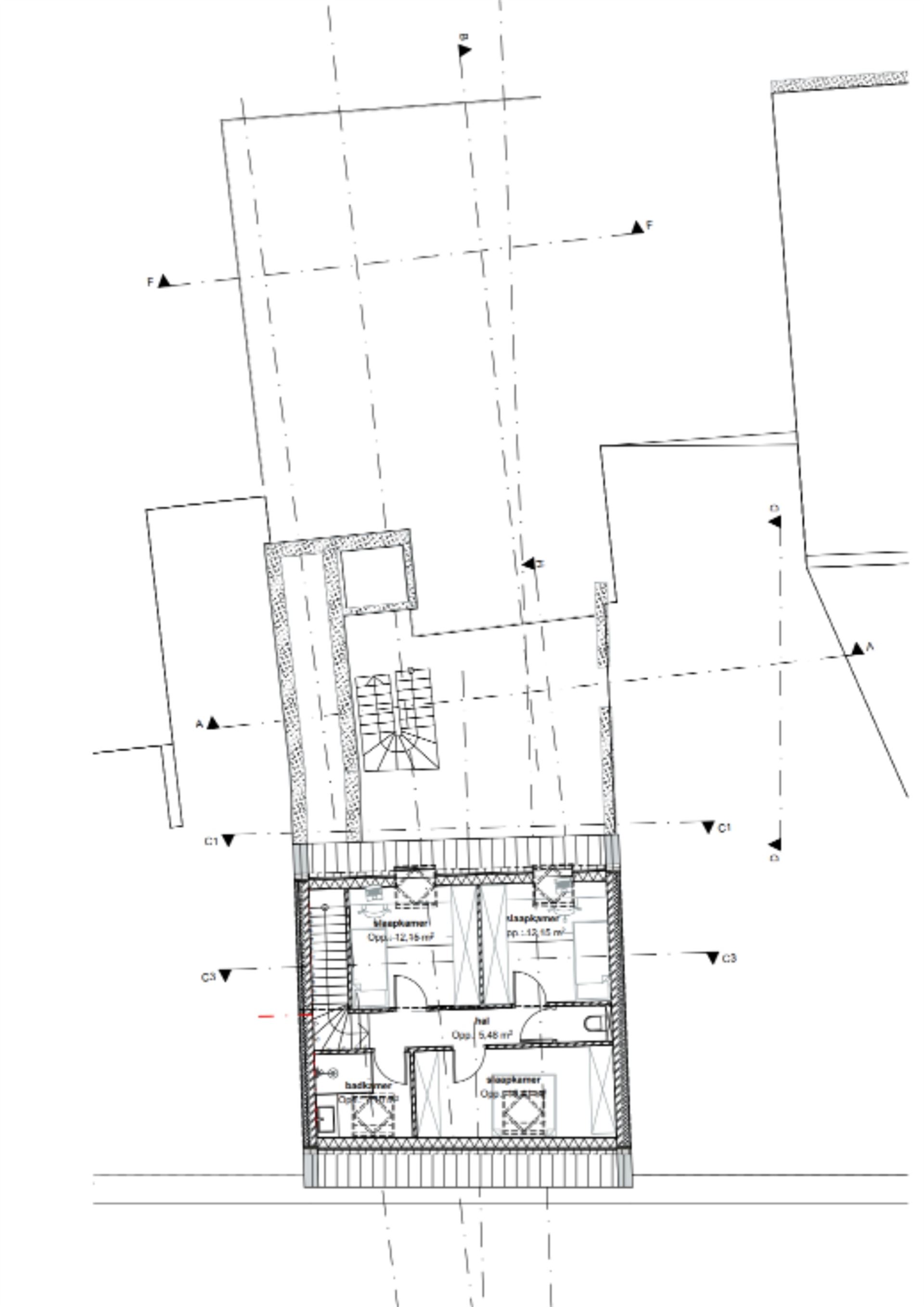
Een elegante trap leidt naar de bovenverdieping, waar het slaapgedeelte is gesitueerd. Hier vindt u 2 ruime slaapkamers (mogelijkheid tot 3) en een luxueuze badkamer. Deze indeling garandeert optimale rust en privacy, ideaal voor een comfortabele nachtrust en totale ontspanning. 

 

Afwerking 

Dit unieke duplexappartement wordt afgewerkt met materialen van topkwaliteit en voorzien van de modernste technieken. Met vloerverwarming en energiezuinige bouw (EPC: A) geniet u van een duurzaam en aangenaam binnenklimaat, ongeacht het seizoen. De oplevering staat gepland voor de zomer van 2026. De getoonde beelden dienen ter illustratie en zijn niet bindend. 

 

Wonen aan de Dijle: een unieke kans 

Pakhuys 48 biedt niet alleen een exclusieve ligging aan het water, maar ook een luxueuze leefomgeving die perfect past bij de levensstijl van de moderne stadsbewoner. Dit duplexappartement is een buitenkans voor wie wil wonen op een van de meest begeerde locaties in Mechelen. 

Aarzel niet langer en neem contact op voor meer informatie of om een persoonlijke rondleiding te plannen. 

 

Lees meer

Algemeen

  • Adres: Lange Schipstraat
    2800 Mechelen
  • Prijs: Prijs op aanvraag
  • Bewoonbare oppervlakte: 130 m²
  • Gevelbreedte: 8.28 m
  • Aantal slaapkamers: 2
  • Aantal badkamers: 1
  • Renovatiejaar: 2025
Bekijk meer

Indeling

  • Leefruimte: 60.48 m²
  • Terras: 52 m²
  • Hal: 5.48 m²
  • Slaapkamer 1: 24.3 m²
  • Badkamer 1: 10.4 m²
  • Slaapkamer 2: 12.41 m²
Bekijk meer

Comfort

  • Verwarming: Individueel
  • Type verwarming: Vloerverwarming
  • Keuken: Volledig ingebouwd
Bekijk meer

Bijkomende informatie

  • Stedenbouwkundige bestemming: Woongebied met een culturele, historische en/of esthetische waarde
  • Stedenbouwkundige vergunningen: Ja
  • Dagvaarding en herstelvordering: Niet van toepassing
  • Voorkooprecht: Niet van toepassing
  • Verkavelingsvergunning: Niet van toepassing
  • Overstromingsgevoelig gebied: Niet gelegen in mogelijk overstromingsgevoelig gebied
Bekijk meer

Plan een bezoek of
vraag meer informatie